Fortsetzung von dem Umbau der 2 Sitzbank.
Und jetzt erst kommt die Herkules Arbeit mit der Elektronik diese auf den Neusten Stand zu bringen.
Dafür ist mein Sohn zuständig und der Assistent geht mit zur Hand.
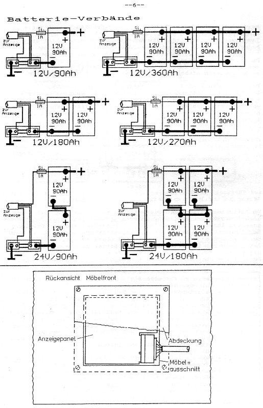
Mit den vorhanden Elektoplänen die gesamte Elektronik überprüft, ob dies auch so noch überein stimmten, was wir aber zum Leidwesen Festellen mussten, ist überall eine Abnahme- eingebaut gewesen.
Und die Nachträglichen Elektroeinbauten sind alle mit 12 V Leitungen verlegt gewesen, diese dann mit 230 V verbunden. (Dies von einem Elektor –Interieur dem Vorbesitzer)
Die Vorhanden Elektroniken ist von der gesamten Stromversorgung genommen worden.
Die vorhanden Elektroleitungen von der Autobatterie genommen und ausgebaut.
Also die gesamten Elektroleitungen bis zu den Sicherungen ausbauen, wie auch die Verschieden Sicherungen entfernt. Unter dem Beifahrersitz haben wir dann auch die gesamte Elektronik entfernt.
hobby-wohnmobilforum.de/attachment/5119/
Also haben wir die Gesamte Elektronik in den Beriech verbracht der auch dafür vorgesehen ist.
Somit ist jetzt keine Elektronik mehr unter dem Beifahrersitz vorhanden, an diesen Platz werde ich jetzt das Bordwerkzeug und Warndreieck, den Hydraulischen- Wagenheber unterbringen.
hobby-wohnmobilforum.de/attachment/5123/
Den vorhanden Wechselrichter mit 400 W12 ist mit diesem Umbau Ausgetauscht worden.
Gleich Zeitig haben wir einen Neuen Wechselrichter NPI 1000-12 W12 V7DC 230 V/AC mit einer Spitzen- Ausgangsleistung von 2000 W mit verbaut.
Und dem entsprechen die Elektroleitungen durch Stärkere ersetz.
Die Zuleitungen von der Autobatterie haben wir durch zwei 20 mm² Kabeln Ersetzt, diese 2 Leitungen sind mit jeweils 50 Ah- Schmelzsicherung abgesichert.
So wie auch die nachträglichen Leitungen (12 V Leitungen) welche auf die 230 V Steckdosen verlegt waren, sind durch 1,5 mm² Kabeln ersetzt worden.
Für die zusätzlichen Steckdosen (In Blau) kann man keine Hohlwanddosen verwenden dies sind im Durchmesser zu groß, für diese Steckdosen IP 20 GIFAS VDE Geprüft sind in der Abdeckung 50/50 mm.
Gleichzeitig haben wir auch die Nachträglichen Elektor- Einbauten mit zusätzlichen Sicherungen abgesichert.
Somit haben mein Sohn und der Assistent die gesamte Elektronik neu aufgebaut an ihrem vorgesehen neuen Verteilerplatz montiert der jetzt einfacher zu erreichen ist.
Im nach Hinein haben wir noch ein Paar Abenderungen vor genommen, zum Erreichen der Sicherungen.
Es sind für die Belüftung 2, 12 V-Ventilatoren, KFZ SD8SA mit verbaut, diese werden über ein Thermostatregler Gesteuert der ist auf 25 C Eingestellt haben, einer bläst die Luft hinein (hinter dem Beifahrersitz unten) und der andere saugt die Luft heraus. (Bei der Eingangstüre oben) Somit erhalte ich eine Saubere Hinderlüftung des Elektor Bereiches.
Man sollte bei so einem Umbau auf alle Schnittpunkte sehr genau darauf achten das genügend Raum für die Elektroleitungen zur Verfügung ist.
Die Aufladung der Batterien über die Solarzellenist ist eine Überprüfung erfolgt, die positiv ausgefallen ist. Denn selben Ladevorgang ist über die Autobatterie auch gemacht worden.
Die gesamte Schaltelektronik konnten wir übernehmen und weitgehendste neu Einsortieren.
Mehre Bilder in der Bilder Datei

