Moin,
ich haben eventuell vor die original verbaute Thule Single Step gegen eine Thule Double Step zu tauschen.
Durch diverse Hüft und Knieerkrankung fällt es mir manchmal schwer die Tritthöhe entspannt zu meistern.
Speziell finde ich die Distanz beim rausgehen auf die erste Stufe zu groß.
Schön wäre es wenn die obere Stufe ca. 8cm höher wäre. Was zur Folge hat das die Distanz nach unten dann natürlich auch höher wird.
Deshalb evtl. die Umrüstung auf die 2 Stufen.
Nun möchte ich mal fragen ob jemand hier im Forum die Thule Double Step bei sich am Optima Edition nachgerüstet hat❓
Dazu meine wichtigste Fragen. Passt das ohne Nacharbeiten am Fahrzeug und reicht die Bauhöhe ohne beim kleinsten Buckel aufzusetzten ❓
Bitte keine Antworten mit dem Verweis auf einen Tritthocker usw. , die Variante kennen ich schon.
Ich freue mich auf Erfahrungen ggf. auch mal Fotos vom verbauten Zustand mit Maßen 😁❗
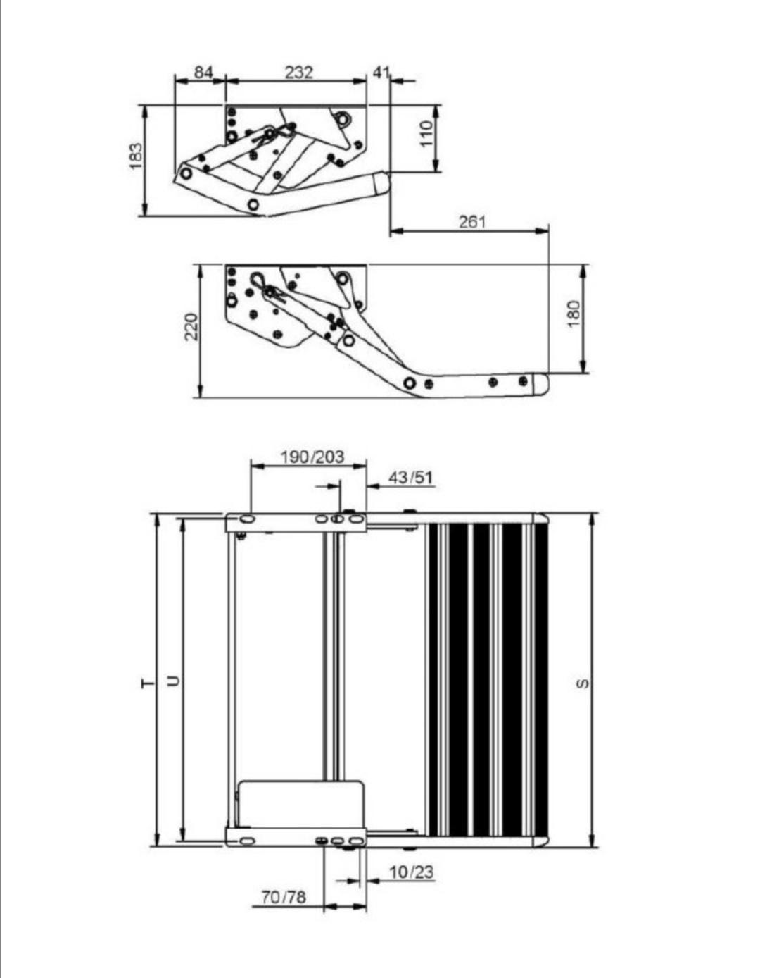
Ich bin mir ziemlich sicher, daß am z. B. Optima de luxe mit Fiat Chassis eine Double Stufe verbaut ist und die obere Stufe da deutlich höher ist im Vergleich zur Citroen /Single Stufe.
(Ich hatte mal 2 mit ausgefahren Stufe neben einander stehen sehen. Aber leider nicht gemessen oder betreten 😬).
Schön wenn ihr mal bei der Double Stufe mit dem Zollstock messen könntet.
(Das Maß von Höhe Womo Fußboden zur oberen Stufe und die Breite der Stufe).
Beim Google der beiden Thule Modelle, soll aber die Höhe der ersten Stufe von den Maß her gleich sein ? (180mm) . Oder gibt es verschiedene Ausführungen?
Gruß vom verwirrten und etwas ratlosen Dirk 🤔

